11
$1,900 Rent
Listed 4 days ago
242 Farley Drive, #Lower
· 2
· 1
· 1
· < 700
Listing History
Buy/Sell/Terminated/Expired listing history for 242 Farley Drive, #Lower
Key Facts
Key facts for 242 Farley Drive, #Lower
Property Type
Apartment, Apartment
Parking
None 0 garage, 1 parking
MLS #
X12482741
Size
< 700 sqft
Basement
Apartment,Full
Listed on
2025-10-24
Lot size
40 x 104.97
Tax
-
Days on Market
6
Approximate Age
16-30
Maintenance Fee
- Parking
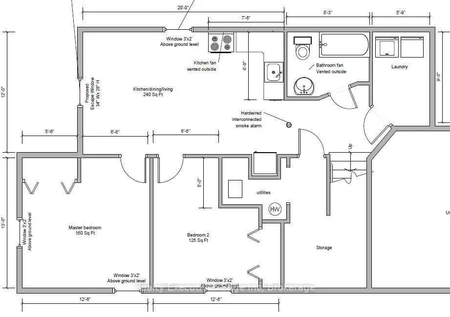
Description
Bright & Spacious 2 bedroom Basement apartment in the sought after west minster woods community in the south end. Large rooms. Lots of windows. Updated Kitchen with dishwasher. Private entrance, In unit laundry, full bathroom with tub. Direct bus to U of G and downtown, walking distance to Pergola c...ommons - Grocery stores, Restaurants, banks, library, fitness center, movie, LCBO, beer store etc. Rent $1900 + 30% Utilities. Lots of storage. 1 parking included.
Similar Properties (No results)
Courtesy of: Realty Executives Edge Inc